SOCOMA ZI Les Granges, 43110 Aurec-sur-Loire

Du lundi au vendredi de 06h00 à 17h00

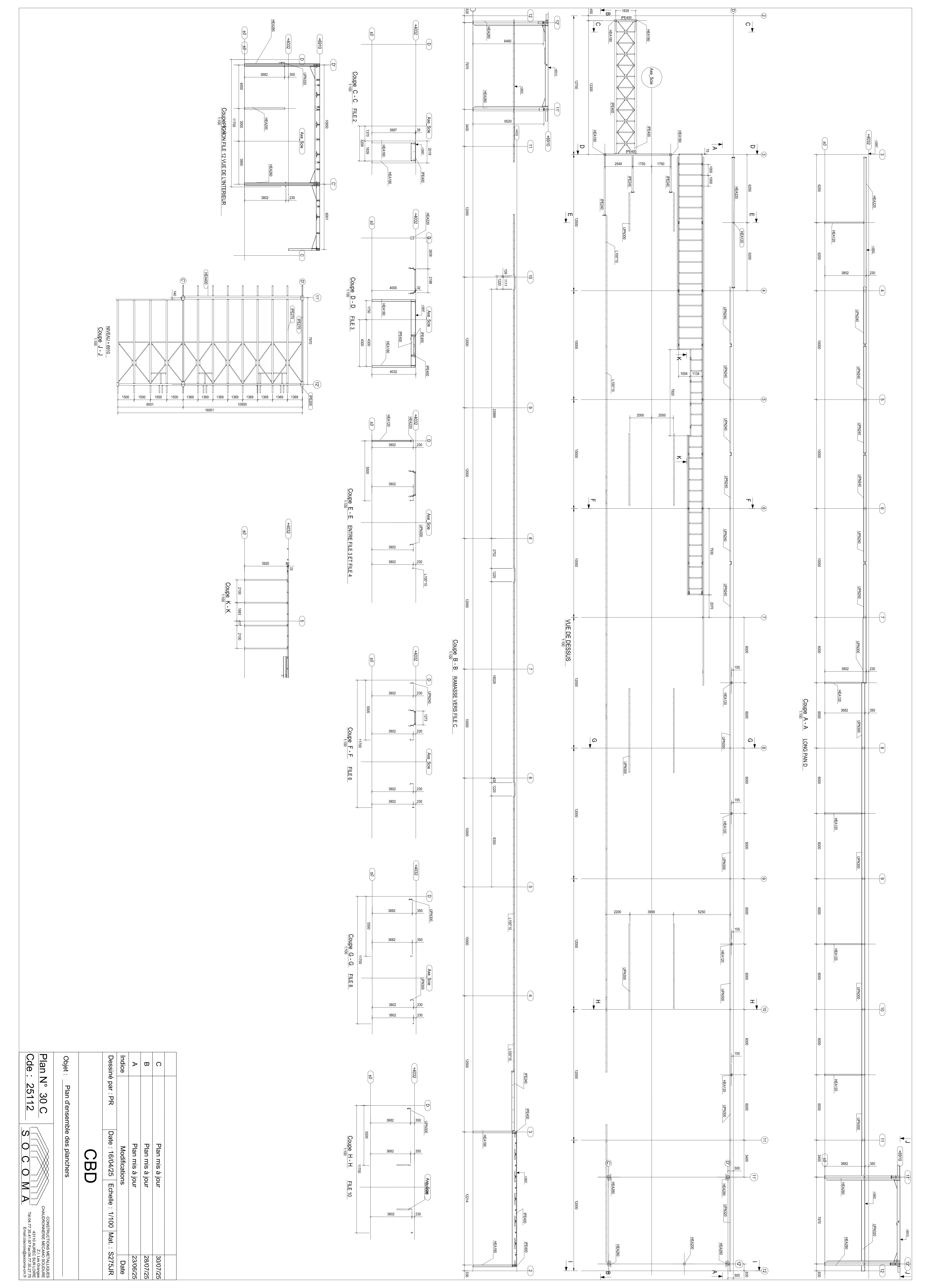
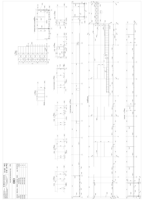
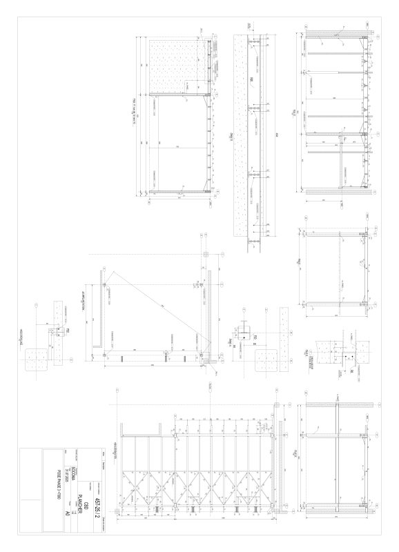
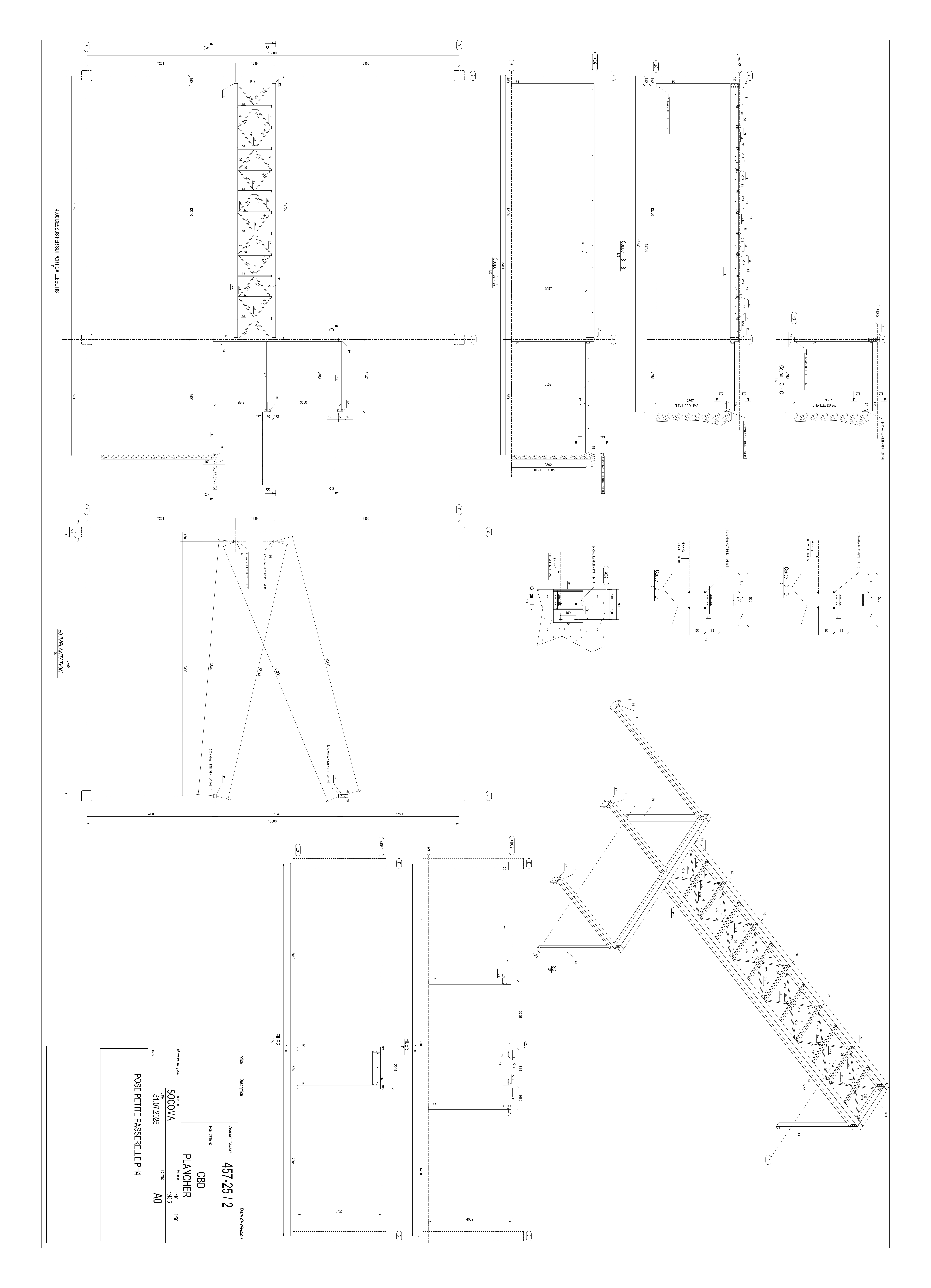
CBD

Charpente

Année

2025

Ville

Craponne sur Arzon

Tonnage

154t

Descriptif du projet

Construction d’un bâtiment de scierie et parc à grumes.

Maître d’œuvre : SERYSS

Réalisation Groupe Charco Net